septiembre 24, 2025
Cómo optimizar el layout de una nave industrial para mayor productividad
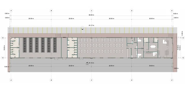
En el mundo industrial, la distribución interna de una nave es clave para alcanzar altos niveles de eficiencia y competitividad. Un layout bien diseñado no solo mejora la productividad, sino que también reduce costos, agiliza procesos y garantiza la seguridad de los trabajadores.
En TESSIN Constructora, sabemos que cada metro cuadrado cuenta. Por eso, compartimos las mejores prácticas para optimizar el layout de tu nave industrial en México.

- Analiza el flujo de trabajo
El primer paso es mapear los procesos productivos. Un diseño que siga la secuencia natural de producción evita movimientos innecesarios, ahorra tiempo y mejora la eficiencia operativa.
- Maximiza el uso del espacio
Un buen layout aprovecha la altura y superficie disponibles. Considera racks verticales, pasillos amplios y áreas de almacenamiento estratégicas para mejorar la logística.
- Prioriza la seguridad
La seguridad industrial debe integrarse al diseño. Espacios para salidas de emergencia, señalización clara y rutas de evacuación son esenciales para proteger a los trabajadores.
- Diseña para la flexibilidad
El mercado cambia y tu nave debe adaptarse. Un layout flexible facilita la ampliación de líneas de producción, reubicación de maquinaria y la implementación de nuevas tecnologías.
- Integra tecnología
El uso de software de simulación y diseño 3D permite prever errores y optimizar la distribución antes de ejecutar la obra, ahorrando tiempo y dinero.
Beneficios de un layout optimizado
- Incremento en la productividad.
- Reducción de costos logísticos.
- Mayor seguridad para el personal.
- Adaptabilidad a nuevas demandas.
- Aprovechamiento total del espacio.
En TESSIN Constructora, diseñamos y construimos naves industriales en México con layouts estratégicos que impulsan la productividad de tu negocio.